een moderne nieuwbouw 3-gevel woning op en met grond
Verkocht Steenokkerzeel
Een 3-gevelwoning (bruto opp. 207,91 m²) op en met grond (357 m²) nabij het centrum van Perk, eindafwerking te voltooien door de koper, info op kantoor te bekomen.
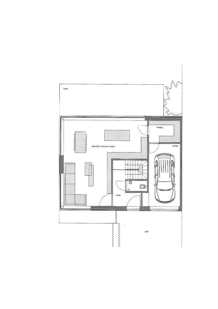
De woningindeling omvat op het GLVL. een garage, leefruimte-eetplaats met open keuken, bergruimte, inkomhall, gastentoilet, traphall - VERD. 1 met ruime nachthall - overloop, toilet, badkamer, 2 SLPK., 1 mastersuite met aansluitend dressingruimte en badkamer.
Residentiële locatie met gunstige ligging in de nabijheid van grote invalswegen, openbaar vervoer en natuur.
Verkoop van de constructie onder BTW-stelsel, verkoop van de grond onder het stelsel van verkooprecht.
De woningindeling omvat op het GLVL. een garage, leefruimte-eetplaats met open keuken, bergruimte, inkomhall, gastentoilet, traphall - VERD. 1 met ruime nachthall - overloop, toilet, badkamer, 2 SLPK., 1 mastersuite met aansluitend dressingruimte en badkamer.
Residentiële locatie met gunstige ligging in de nabijheid van grote invalswegen, openbaar vervoer en natuur.
Verkoop van de constructie onder BTW-stelsel, verkoop van de grond onder het stelsel van verkooprecht.